Default sidemenu image

Leave a Message

Thank you for your message. We will be in touch with you shortly.

Explore Our Properties

Property Description

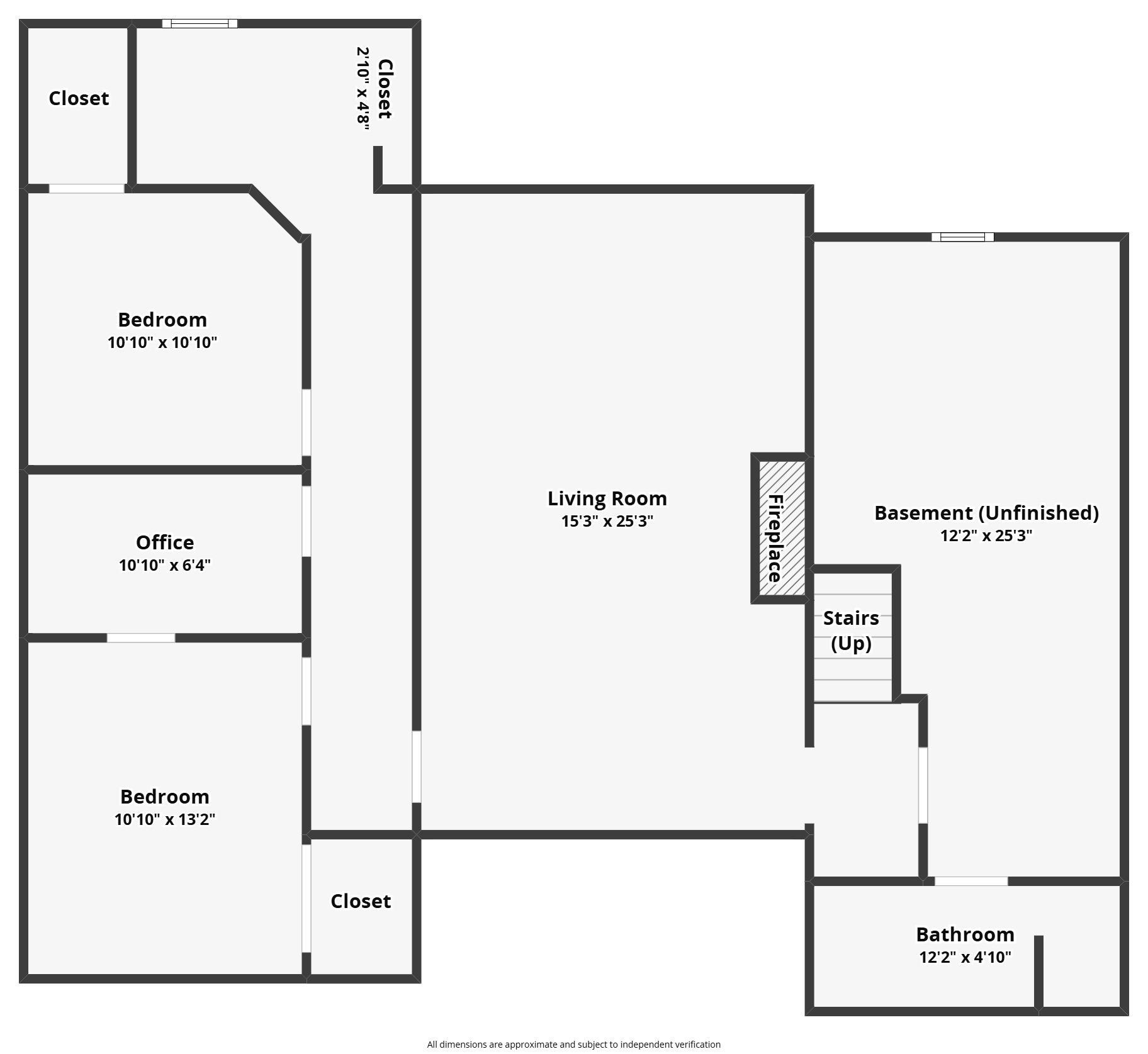
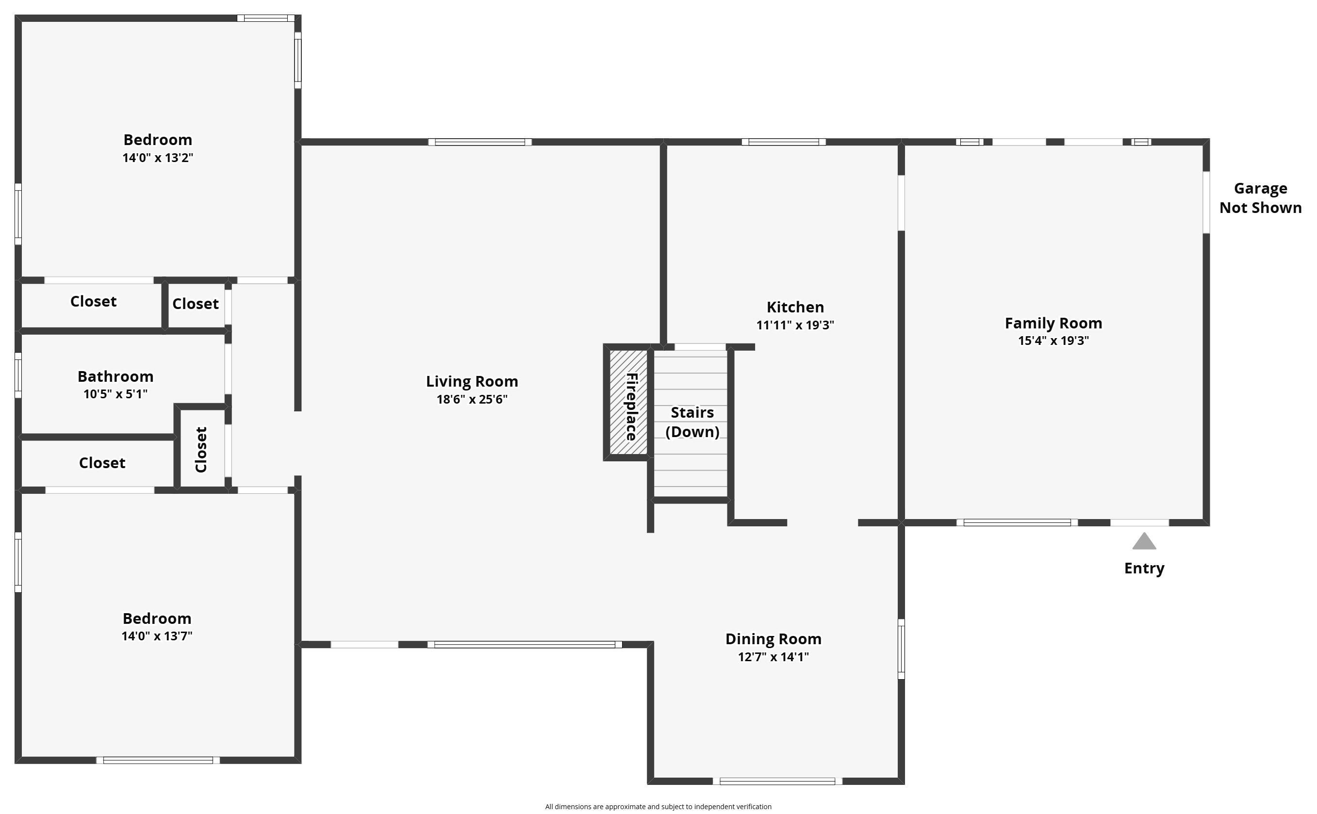
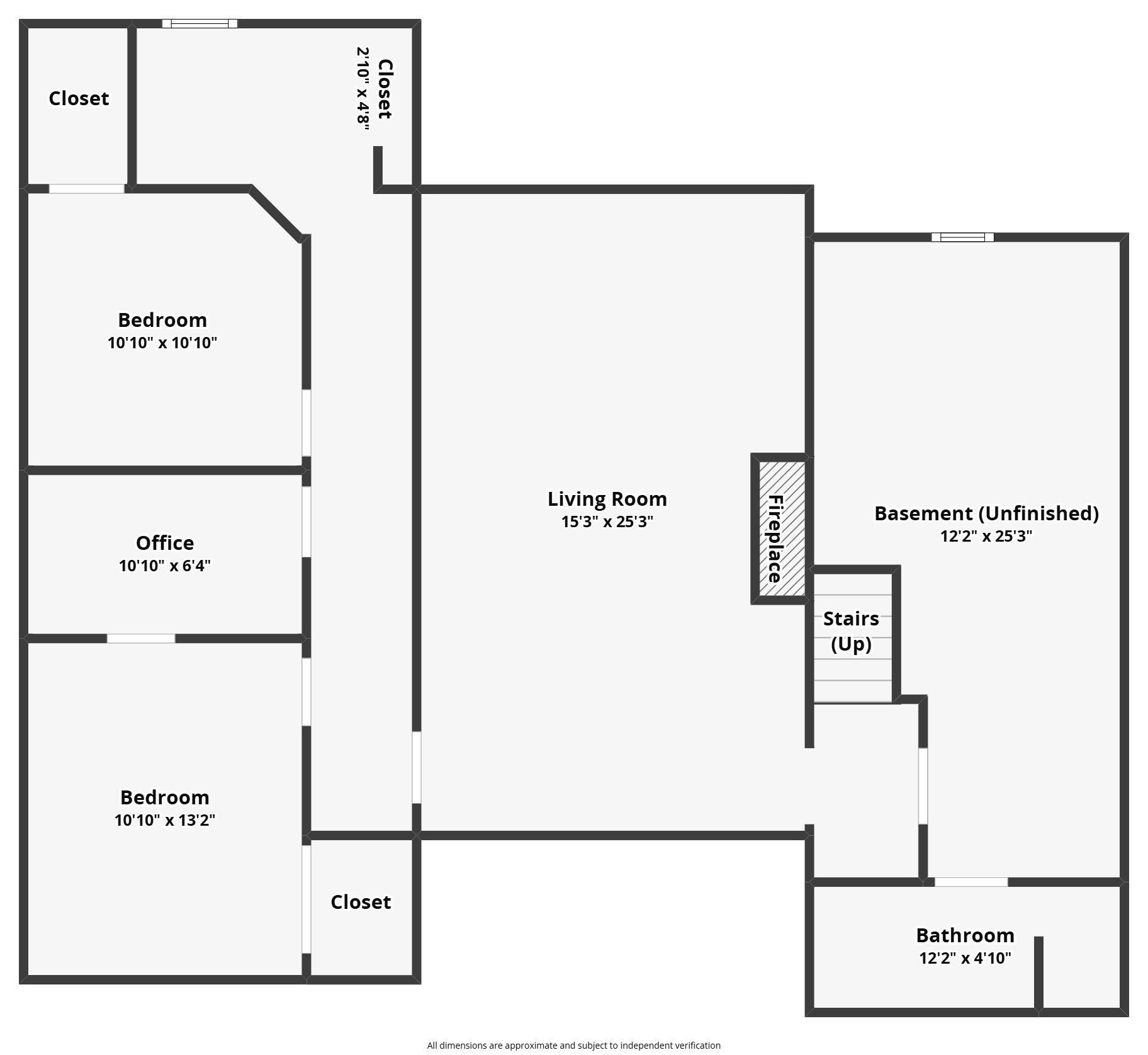
Sophisticated, serene, and architecturally distinguished, this all-brick mid-century modern residence sits gracefully atop nearly one acre in the esteemed Waterswolde subdivision. Surrounded by mature trees and lush, thoughtfully curated landscaping, the property offers an extraordinary level of privacy and presence--an estate-like setting rarely found in this area. Inside, nearly 3,000 sq ft of impeccably finished living space unfolds with intentional design and understated luxury. Four generous bedrooms and two beautifully updated full bathrooms--strategically positioned on separate levels--provide exceptional comfort for both daily living and hosting. Multiple living and dining spaces offer versatility, whether you're entertaining guests or enjoying quiet moments at home. The kitchen serves as a refined centerpiece, blending style and function with solid-surface countertops, rich hardwood flooring, a charming breakfast area, and high-quality stainless-steel appliances. Its clean lines and warm finishes complement the home's architectural pedigree. Recent upgrades--most notably the brand-new boiler and A/C unit--ensure modern efficiency, while iconic mid-century elements preserve the home's timeless allure. Graceful archways, glowing hardwood floors, tongue-and-groove oak paneling, and two exquisite limestone fireplaces create an ambiance that is both luxurious and deeply welcoming. This is a residence for those who appreciate craftsmanship, character, and a lifestyle defined by comfort, privacy, and enduring design.

Overview

Property Status
For Sale
Lot Size
0.89 Acres
MLS ID
202548363
Property Type
Residential
Year Built
1954

Features & Amenities

Total Area
2,943 Sq.Ft.
Neighborhood
Fort Wayne
Architecture Styles
Bungalow
Stories
1
Garage Spaces
2.0
Lot Features
Other
Heat Type
Hot Water
Air Conditioning
Wall AC
Fireplace
Living/Great Rm, One, Vented
Sewer
City
Elementary School
Lincoln
Middle School
Shawnee
High School
Northrop
School District
Fort Wayne Community
Sales Price
$305,000
Real Estate Tax
$3,162/yr

Downloads

8324 Waterswolde Lane

Schedule a Tour

We would love to help you see this beautiful home! Lets Connect. 

Enter a valid email

Thank you

for your interest in 8324 Waterswolde Lane, Fort Wayne, IN 46825

back to page
8324 Waterswolde Lane
Navigate
8324 Waterswolde Lane
explore in 3d

Mortgage Calculator

Estimate your monthly mortgage payment, including the principal and interest, property taxes, and HOA. Adjust the values to generate a more accurate rate.

$0,000 Your Payment 20 15 65
$0,000 Your Payment

I'm Interested In

8324 Waterswolde Lane

or
  • CallTyler Dohner

    License #RB23000685

    (260) 246-1298
  • LETS CONNECT

    Enter a valid email

    Follow Us On Instagram